/
【外観】★新築 耐震耐火構造の旭化成へーベルメゾン★ペット共生型マンション★
-
バストイレ別
-
室内洗濯機置場
-
TVモニタ付きインターホン
-
カウンターキッチン
-
独立洗面台
-
浴室乾燥機
-
オートロック
- 保証金
- -
- 敷引 / 償却
- - / -
- 敷金積み増し
- -
- 間取り / 詳細
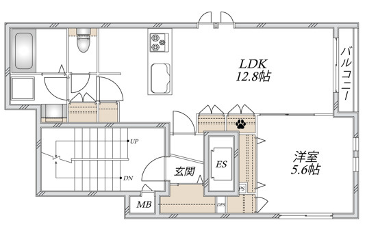
- 1LDK
LDK 12.8帖/洋室 5.6帖 - 向き
- 南東
- 専有面積
- 47.50㎡
- バルコニー
(テラス)面積 - -
- 所在階 / 階建て
- 2階 / 4階建
- 建物構造
- 軽量気泡コンクリート
- 築年月
- 2026年8月(予定)
- 種別
- 賃貸マンション
- 保険会社 / 料金
- 有 旭化成少額短期保険 18,400円 / 2年
- 保証会社 / 料金
- 必加入 / その他
旭化成不動産サポート:【初回保証料】月額賃料等の50%【継続保証料】2年毎2万円 - 駐車場 / 月額
- 無 / -
- 現況
- 未完成
- 入居可能時期
- 2026年08月01日予定
- その他条件
- マイコンシェルクラブ2年分:1万8,000円 室内清掃費用:7万1,500円
- 設備条件
-
- ペット相談 / ペット専用設備 / 閑静な住宅地 / 2人入居可 / 室内洗濯機置場 / フローリング / バルコニー / 都市ガス / 公営水道 / 公共下水 / 24時間換気システム / 電気有 / 駐輪場 / 耐震構造 / 外観タイル張り / ガスコンロ / コンロ2口以上 / システムキッチン / コンロ3口 / カウンターキッチン / バス・トイレ別 / 追焚機能浴室 / 浴室乾燥機 / 温水洗浄便座 / 洗面台 / 洗髪洗面化粧台 / 独立洗面台 / エアコン / シューズボックス / 収納豊富 / BS / オートロック / TVモニタ付インターホン / 宅配ボックス / 複層ガラス / ディンプルキー / 防犯カメラ / エアコン2台 / エアコン全室 / 角部屋 / 初期費用カード決済可
- 契約期間
- 2年
- 賃貸区分
- 一般
- 更新料
- 1ヶ月(新賃料)
- 更新事務手数料
- -
- 総戸数
- 2戸
- 特優賃
- -
- 取引態様
- 専任媒介
- 物件番号
- 103044871
- 管理コード
- -
- 情報更新日
- 2026年04月05日
- 次回更新予定日
- 2126年04月19日
- 取扱会社
-
- 株式会社ニチワ 渋谷営業所
- 東京都渋谷区宇田川町28-3 いちご渋谷文化村通りビル5階
- TEL:03-3464-2101
- 国土交通大臣 (7) 第5417号
- 備考
- ※貸主指定の火災保険に加入していただきます。※退去時のルームクリーニング費用は借主負担になります。※成約時、仲介手数料として賃料の1.1ヶ月分(税込)を申し受けます。
-
スーパー
オオゼキ野沢店
3845m(49分)
物件の特徴
セールスポイント
★新築 耐震耐火構造の旭化成へーベルメゾン★ワンちゃん・猫ちゃんなどペット複数頭飼育可能なペット共生住宅です★神泉駅より徒歩2分の好立地物件★
担当者のコメント
基本情報
設備条件
その他
ルシェロ円神の他の部屋
周辺施設
近隣の物件
よく見られている物件
ルシェロ円神
24.1万円
7,000円
1LDK(47.50㎡)




貴嶋 大樹